Basic HTML Version
Table of Contents
View Full Version
Page 143 - Landscaping for Wildlife
P. 143
138
139
140
141
142
143
144
145
146
147
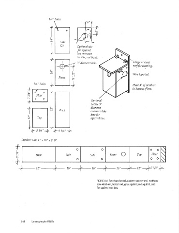
148